Villa singola in vendita

Castelli Calepio, Via della Costituente - Cividino
€ 350.000
Prezzo aggiornato
5 locali 5 locali
321 Mq 321 Mq
2 bagni 2 bagni

Villa singola in vendita

Castelli Calepio, Via della Costituente - Cividino

Descrizione annuncio

CASTELLI CALEPIO - Cividino:

Presentiamo ampia villa singola anni 70' edificata su lotto di oltre 1500 mq.
La proprietà si sviluppa su tre piani fuori terra ed uno interrato, ed è così meglio costituita:

Piano terra: Autorimessa di oltre 50 mq

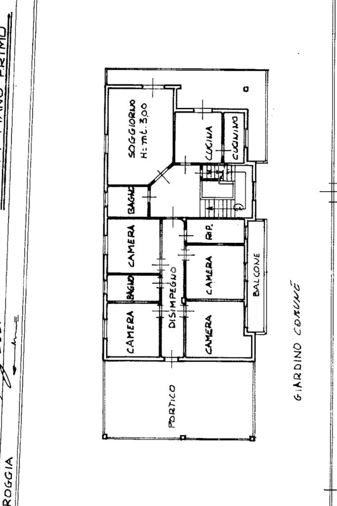
Piano primo: il cuore della casa, dove è presente l'abitazione principale, composta da ampio soggiorno, cucina e cucinino annesso, 4 camere da letto, doppi servizi, disimpegno, ripostiglio, due balconi e grande terrazzo coperto.

Piano secondo: zona sottotetto

Piano interrato: cantina, ripostiglio e locale caldaia.

La villa viene venduta comprensiva di laboratorio attualmente affittato di oltre 210 mq.

Per maggiori informazioni non esitare a contattarci allo 035/0775622.

Ogni agenzia ha un proprio titolare ed è autonoma. Le presenti informazioni non costituiscono elemento contrattuale.

Mostra tutto

Nelle vicinanze

Trasporto pubblico Trasporto pubblico
Palazzolo sull'Oglio
Palazzolo sull'Oglio
810 m
Trasporto pubblico
1,1 Km
Scuole Scuole
scuola media
260 m
scuola elementare
310 m
Scuola Primaria Statale
980 m
Scuole
1,0 Km
Scuola Statale Primaria MURA – GALIGNANI
1,2 Km
Farmacia Farmacia
farmacia
190 m
Farmacia Valcamonica
850 m
Il laboratorio della naturopatia
920 m
Farmacia
1,2 Km
Farmacia Cottinelli
1,4 Km
Ospedali Ospedali
Mellino Mellini - Richiedei
1,1 Km
Supermercati Supermercati
Italmark
780 m
Dimeglio
1,2 Km
Eurospin
1,2 Km
Migross
1,2 Km
Penny Market
1,6 Km
Negozi Negozi
Vezzoli
800 m
Nonsolopane
860 m
Negozi
900 m
Indian Market
1,3 Km
Roby e Anna
1,4 Km
Bar Bar
Oratorio San Giuseppe
820 m
Orient Express
840 m
Crazy River
850 m
Bar
890 m
Baretto
950 m
Ristoranti Ristoranti
Trattoria "Tre Ponti"
670 m
Voglia di Pizza
730 m
Ristoranti
750 m
Osteria della Villetta
750 m
YUGEN Lounge Restaurant
1,4 Km
Mostra tutto

Caratteristiche

Rif.:
61135769
Piano:
Terra con giardino di 3
Totale piani:
3
Box:
1
Balconi:
1
Terrazzi:
1
Mostra tutto
Prezzo Prezzo
€ 350.000
Rata mutuo Rata mutuo
€ 1.634 / mese
Spese annue Spese annue
€ 0
Proponi il tuo prezzoProponi il tuo prezzo

Classe Energetica

G
G
G
G
G
G
G
G
G
EP invernale del fabbricato:
EP estiva del fabbricato:
Anno di costruzione:
1970
Riscaldamento:
Autonomo
Tipo impianto:
A radiatori
Tipo alimentazione:
Metano

Prezzo ridotto di €1 (11%%)

Ti interessa visionare l'immobile?

Fissa un appuntamento  Fissa un appuntamento

Richiedi informazioni

Clicca su Leggi per aprire l'informativa
* Questi campi sono obbligatori

Calcola il tuo mutuo

Semplice e senza impegno
Anticipo

( % )
Mutuo

( % )

pochi semplici passi

inserisci i tuoi dati
Questionario completato
Grazie per aver richiesto un appuntamento senza impegno con un nostro Consulente del Credito e Assicurativo.

Hai inserito correttamente tutti i dati necessari e a breve riceverai una e-mail con un link da convalidare per inviare i tuoi dati.
Affiliato
Immobiliare Grumello Srl
Via Roma, 30/32 24064 Grumello Del Monte (BG)

Il nostro staff


  • Jesus Massimo Bergamaschi
    Responsabile

  • Ingrid Di Bello
    Coordinatrice

  • Ilenia Dadei
    Affiliata

  • Thomas Franchini
    Collaboratore

  • Mariem Ghicha
    Collaboratrice
Via Roma, 30/32 24064 Grumello Del Monte (BG)
Zona: Grumello del Monte-Castelli Calepio
Mostra su mappa
Orari: LUN - VEN 9.30-12.30 14.30-19.30 SAB 9.30-12.30 14.30-16.00
Affiliato
Immobiliare Grumello Srl
Via Roma, 30/32 24064 Grumello Del Monte (BG)

2026 Tecnocasa Franchising S.p.A. - P. IVA 08365160152 - Via Monte Bianco 60/A 20089 Rozzano (MI). Ogni agenzia ha un proprio titolare ed è autonoma. Privacy policy | Policy utilizzo | Cookie policy