Quadrilocale in vendita

Grumello Del Monte, Via Beato Luigi Palazzolo
€ 220.000
4 locali 4 locali
106 Mq 106 Mq
2 bagni 2 bagni

Quadrilocale in vendita

Grumello Del Monte, Via Beato Luigi Palazzolo

Descrizione annuncio

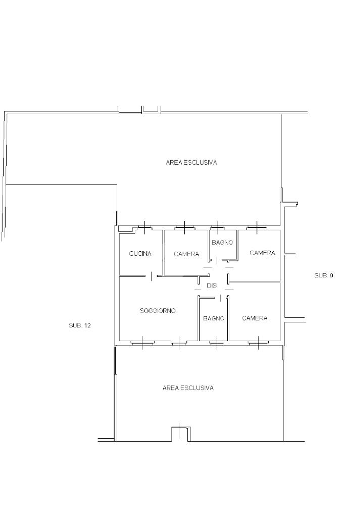
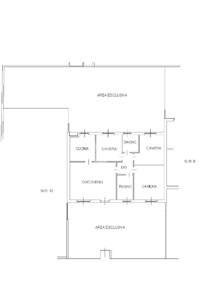
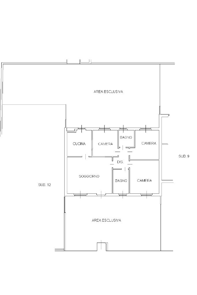
Nel comune di Grumello del Monte, in centro paese, proponiamo in vendita un quadrilocale al piano terra, costruito nel 2006.

L'immobile dispone di una cucina separata abitabile, un soggiorno luminoso e funzionale, due camere da letto doppie, una camera matrimoniale, un bagno finestrato con vasca e un bagno finestrato con doccia.
Il giardino fronte e retro e l'ingresso indipendente rappresentano un valore aggiunto, offrendo uno spazio esterno privato per momenti di relax o per chi ama la traquillità.

L'abitazione è dotata di aria condizionata, assicurando un ambiente confortevole durante tutto l'anno e di un impianto stufa, che contribuisce a creare un'atmosfera accogliente nei mesi più freddi.

Completa la soluzione il box doppio di pertinenza.

Riscaldamento autonomo.

Per maggiorni informazioni o per fissare una visita in loco contattare lo 035.0775622.

Ogni agenzia ha un proprio titolare ed è autonoma. Le presenti informazioni non costituiscono elemento contrattuale.

Mostra tutto

Nelle vicinanze

Trasporto pubblico Trasporto pubblico
stazione di Grumello del Monte
stazione di Grumello del Monte
990 m
Chiuduno
Chiuduno
3,0 Km
Ricariche auto elettriche Ricariche auto elettriche
LIDL Grumello del Monte
980 m
Eurospin Castelli Calepio
1,6 Km
Scuole Scuole
Scuola secondaria di I grado "L. Signorelli"
1,0 Km
Scuola Primaria "Paolo Ravasio"
1,2 Km
Scuola Primaria "Papa Giovanni XXIII"
1,5 Km
Scuola elementare di Tagliuno
2,3 Km
Scuola media di Tagliuno
2,5 Km
Farmacia Farmacia
Farmacia
420 m
farmacia
2,9 Km
Supermercati Supermercati
Italmark
650 m
MD
870 m
Penny
990 m
Conad
1,1 Km
Migross
1,6 Km
Bar Bar
Bar
440 m
Nikita
1,3 Km
Erli pancaffè
1,5 Km
Ristoranti Ristoranti
Ristobio
1,1 Km
Zero9 Hamburgeria
1,1 Km
Cascina dei Filagni
1,2 Km
Ubaldo
1,2 Km
Agriturismo San Pantaleone
1,4 Km
Mostra tutto

Caratteristiche

Rif.:
61121112
Piano:
Terra
Box:
1
Camere da letto:
3
Arredamento:
Parziale
Condizionamento:
Autonomo
Mostra tutto
Prezzo Prezzo
€ 220.000
Rata mutuo Rata mutuo
€ 1.037 / mese
Spese annue Spese annue
€ 800
Proponi il tuo prezzoProponi il tuo prezzo
Immobile valutato con T·Valuta

Classe Energetica

G
G
G
G
G
G
G
G
G
EP globale non rinnovabile:
324.94 kW h/m² anno
EP globale rinnovabile:
1.39 kW h/m² anno
EP invernale del fabbricato:
EP estiva del fabbricato:
Anno di costruzione:
2006
Riscaldamento:
Autonomo
Tipo impianto:
A radiatori
Tipo alimentazione:
Metano

Ti interessa visionare l'immobile?

Fissa un appuntamento  Fissa un appuntamento

Richiedi informazioni

Clicca su Leggi per aprire l'informativa
* Questi campi sono obbligatori

Calcola il tuo mutuo

Semplice e senza impegno
Anticipo

( % )
Mutuo

( % )

pochi semplici passi

inserisci i tuoi dati
Questionario completato
Grazie per aver richiesto un appuntamento senza impegno con un nostro Consulente del Credito e Assicurativo.

Hai inserito correttamente tutti i dati necessari e a breve riceverai una e-mail con un link da convalidare per inviare i tuoi dati.
Affiliato
Immobiliare Grumello Srl
Via Roma, 30/32 24064 Grumello Del Monte (BG)

Il nostro staff


  • Jesus Massimo Bergamaschi
    Responsabile

  • Ingrid Di Bello
    Coordinatrice

  • Ilenia Dadei
    Affiliata

  • Thomas Franchini
    Collaboratore
Via Roma, 30/32 24064 Grumello Del Monte (BG)
Zona: Grumello del Monte-Castelli Calepio
Mostra su mappa
Orari: LUN - VEN 9.30-12.30 14.30-19.30 SAB 9.30-12.30 14.30-16.00
Affiliato
Immobiliare Grumello Srl
Via Roma, 30/32 24064 Grumello Del Monte (BG)

2026 Tecnocasa Franchising S.p.A. - P. IVA 08365160152 - Via Monte Bianco 60/A 20089 Rozzano (MI). Ogni agenzia ha un proprio titolare ed è autonoma. Privacy policy | Policy utilizzo | Cookie policy