Bilocale in vendita

Grumello Del Monte, Via Giuseppe Nicolai
€ 209.000
2 locali 2 locali
68 Mq 68 Mq
1 bagno 1 bagno

Bilocale in vendita

Grumello Del Monte, Via Giuseppe Nicolai

Descrizione annuncio

GRUMELLO DEL MONTE:

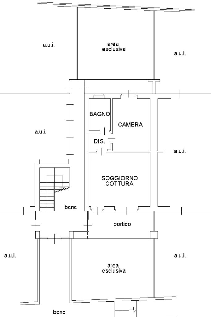
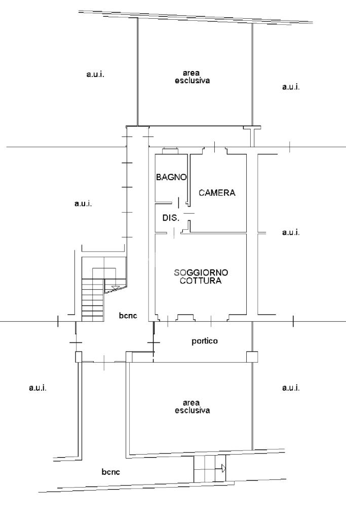
Nel cuore di Grumello del Monte, proponiamo in vendita esclusiva, bilocale sito a piano terra, inserito in contesto elegante, realizzato nel 2025. L'appartamento si sviluppa su piano unico e gode di giardino fronte-retro ideale per momenti di relax all'aperto.

Dall'ingresso ci accoglie una luminosa zona living con angolo cottura, disimpegno notte, camera da letto matrimoniale oltre al bagno con box doccia e termoarredo.

La soluzione risulta essere in classe energetica A4, garantendo consumi energetici quasi a zero (NZEB). Gli interni, non arredati, permettono di personalizzare gli spazi secondo le proprie esigenze. Impianto di riscaldamento a pavimento, pannelli fotovoltaici 3kw e split di raffrescamento, assicurano un clima ideale in ogni stagione.

I serramenti tripli a basso emissivo in combinazione con le tapparelle elettriche aggiungono un tocco di praticità e sicurezza. Completano la proprietà una cantina e un posto auto coperto esterno, offrendo ulteriore comodità. La posizione centrale consente di accedere facilmente a tutti i servizi del comune, rendendo questa soluzione abitativa particolarmente interessante.

Spese condominiali circa 300€ annui.

Ogni agenzia ha un proprio titolare ed è autonoma. Le presenti informazioni non costituiscono elemento contrattuale.

Mostra tutto

Nelle vicinanze

Trasporto pubblico Trasporto pubblico
stazione di Grumello del Monte
stazione di Grumello del Monte
960 m
Chiuduno
Chiuduno
2,8 Km
Ricariche auto elettriche Ricariche auto elettriche
LIDL Grumello del Monte
990 m
Eurospin Castelli Calepio
1,5 Km
Scuole Scuole
Scuola secondaria di I grado "L. Signorelli"
790 m
Scuola Primaria "Paolo Ravasio"
970 m
Scuola Primaria "Papa Giovanni XXIII"
1,6 Km
Scuola elementare di Tagliuno
2,3 Km
Scuola media di Tagliuno
2,4 Km
Farmacia Farmacia
Farmacia
220 m
Supermercati Supermercati
Italmark
550 m
MD
800 m
Penny
910 m
Conad
1,1 Km
Migross
1,5 Km
Bar Bar
Bar
260 m
Nikita
1,3 Km
Erli pancaffè
1,5 Km
Ristoranti Ristoranti
Ristobio
1,1 Km
Ubaldo
1,1 Km
Zero9 Hamburgeria
1,1 Km
Agriturismo San Pantaleone
1,2 Km
Cascina Fiorita
1,3 Km
Mostra tutto

Caratteristiche

Rif.:
61205248
Piano:
Terra con giardino di 2
Totale piani:
2
Posti auto:
1
Camere da letto:
1
Arredamento:
Assente
Mostra tutto
Prezzo Prezzo
€ 209.000
Rata mutuo Rata mutuo
€ 990 / mese
Spese annue Spese annue
€ 300
Proponi il tuo prezzoProponi il tuo prezzo

Classe Energetica

A4
A4
A4
A4
A4
A4
A4
A4
A4
EP globale non rinnovabile:
23.65 kW h/m² anno
EP globale rinnovabile:
62.50 kW h/m² anno
EP invernale del fabbricato:
EP estiva del fabbricato:
Anno di costruzione:
2025
Riscaldamento:
Autonomo
Tipo impianto:
A pavimento
Tipo alimentazione:
Metano

Ti interessa visionare l'immobile?

Fissa un appuntamento  Fissa un appuntamento

Richiedi informazioni

Clicca su Leggi per aprire l'informativa
* Questi campi sono obbligatori

Calcola il tuo mutuo

Semplice e senza impegno
Anticipo

( % )
Mutuo

( % )

pochi semplici passi

inserisci i tuoi dati
Questionario completato
Grazie per aver richiesto un appuntamento senza impegno con un nostro Consulente del Credito e Assicurativo.

Hai inserito correttamente tutti i dati necessari e a breve riceverai una e-mail con un link da convalidare per inviare i tuoi dati.
Affiliato
Immobiliare Grumello Srl
Via Roma, 30/32 24064 Grumello Del Monte (BG)

Il nostro staff


  • Ingrid Di Bello
    Coordinatrice

  • Ilenia Dadei
    Affiliata

  • Thomas Franchini
    Collaboratore

  • Mariem Ghicha
    Collaboratrice
Via Roma, 30/32 24064 Grumello Del Monte (BG)
Zona: Grumello del Monte-Castelli Calepio
Mostra su mappa
Orari: LUN - VEN 9.30-12.30 14.30-19.30 SAB 9.30-12.30 14.30-16.00
Affiliato
Immobiliare Grumello Srl
Via Roma, 30/32 24064 Grumello Del Monte (BG)

2026 Tecnocasa Franchising S.p.A. - P. IVA 08365160152 - Via Monte Bianco 60/A 20089 Rozzano (MI). Ogni agenzia ha un proprio titolare ed è autonoma. Privacy policy | Policy utilizzo | Cookie policy